





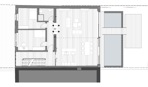
Standort: Mensdorf, Luxembourg
Kunde: privater Bauherr
Projektbeschreibung: Neubau eines EFH in Massivbauweise
Status: in Ausführung
Nutzfläche: 384 m², Brutto-Rauminhalt: 1450 m³
Fotos: Freihöfer architecture sàrl






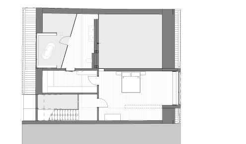
Standort: Mensdorf, Luxembourg
Kunde: privater Bauherr
Projektbeschreibung: Neubau eines EFH in Massivbauweise
Status: in Ausführung
Nutzfläche: 384 m², Brutto-Rauminhalt: 1450 m³
Fotos: Freihöfer architecture sàrl